นวัตกรรมแห่งอนาคตของเครื่องจักรสิ่งทอ
สถานที่ตั้งปัจจุบัน: บ้าน » สินค้า » อุตสาหกรรมสิ่งทอ » เครื่องเติมบอลลูนแบบจุ่มสองชั้นพร้อม detwister

loading

แบ่งปัน:
facebook sharing button
twitter sharing button
line sharing button
wechat sharing button
linkedin sharing button
pinterest sharing button
whatsapp sharing button
sharethis sharing button

เครื่องเติมบอลลูนแบบจุ่มสองชั้นพร้อม detwister

สามารถใช้แทนเครื่องแรงเหวี่ยงและเครื่องขยายแบบเปียกได้
  • วีเคดีเอส-1400S

  • VIROCK

สถานะห้องว่าง:

1. การใช้เครื่อง:

เครื่องซีรีส์นี้ใช้สำหรับบีบน้ำและชุบกระบวนการปรับผ้านุ่มของผ้าแบบท่อ ผ้าจะได้รับการบำบัดด้วยการบอลลูนสองครั้ง การบีบสองครั้ง และผ้าทางออกจะเรียบและไม่มีรอยพับ

สามารถใช้แทนเครื่องแรงเหวี่ยงและเครื่องขยายแบบเปียกได้  

2. พารามิเตอร์เครื่อง:

ข้อมูลจำเพาะรุ่น

วีเคดีเอส-1400S

ความกว้างในการทำงาน

1400มม

ความกว้างของพื้นผิวลูกกลิ้ง

1500มม

ความเร็วทางกล

0-60ม./นาที

กำลังมอเตอร์

12.56KW

ความดันอากาศอัดที่ใช้งานได้

0.4~0.6Mpa

น้ำหนักอากาศ

6.0T

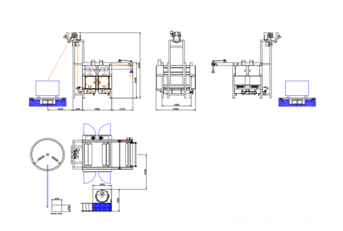
3. การวาดภาพ;

1694769719728

ก่อน: 
ถัดไป: 
VIROCK Textile Machinery Co., Ltd.เป็นผู้ผลิตอุปกรณ์สิ่งทอมืออาชีพที่มีประสบการณ์เกือบ 20 ปี

ลิงค์ด่วน

ข้อมูลติดต่อ

+86-13974856209
shirley.virock@gmail.com
     shirely@virock.com
+86-731-88051998
#8 ถนน Virock, เขตพัฒนาเศรษฐกิจและเทคโนโลยี Wangcheng, ฉางซา, หูหนาน, จีน
ลิขสิทธิ์ 2023 VIROCK Textile Machinery Co., Ltd. เทคโนโลยีโดย Leadong. Sitemap.